< zurück zu den Wohnanlagen

Wohnanlage Arnoldstraße; Rothestraße; Holländische Reihe

BLD_0290_01.jpg
BLD_0290_04.jpg
BLD_0290_02.jpg
BLD_0290_03.jpg
0290-072.GIF
0290-092.GIF
0290-021.GIF
0290-096.GIF
0290-098.GIF
0290-109.GIF
0290-094.GIF

Arnoldstraße 31-33
Rothestraße 23-35
Holländische Reihe 38-42

Unsere Wohnanlage in der Rothestraße und Umgebung ist im charmanten Rotklinker-Stil gebaut und besticht durch die zentrale und dennoch ruhige Lage in Ottensen.

In wenigen Gehminuten erreicht man den Platz der Republik sowie die Ottensener Hauptstraße und den Alma-Wartenberg-Platz, wo tags und nachts das Leben tobt. Hervorragende Einkaufsmöglichkeiten, ein reichhaltiges Kulturangebot und den Flair der Straße genießen. Das ist Ottensen!

Ausstattung

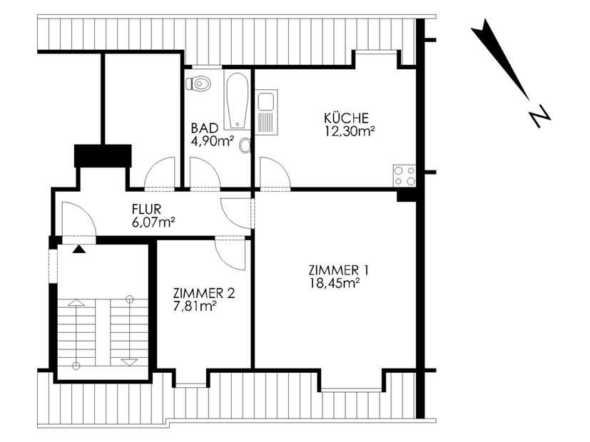
Die freifinanzierte Wohnanlage umfasst 2- bis 5-Zimmer-Wohnungen mit 47 m² bis 111 m² Wohnfläche.

Zur Wohnungsausstattung zählen:

  • Küche: E-Herd mit Backofen, Doppelspüle
  • Bad oder Dusche mit WC
  • Zentralheizung (Gasthermen/Gaszentralheizung)
  • Zentrale Warmwasserversorgung
  • Wohnungswasserzähler
  • Türöffner-/Gegensprechanlage
  • Breitbandkabelanschluss
  • Kellerraum und/oder Dachboden